Uudisrakennukset
As. Oy Tornion Hellälänranta
Pienkerrostalot ja paritalot
Suunnittelutehtävä: Arkkitehtisuunnittelu
Projektiaika: 2019–2021
Rakentaja: TSV-Rakennus Oy
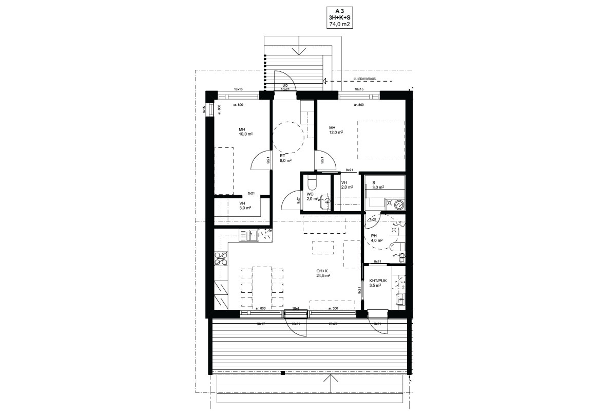
Tornion Hellälään suunnitellun asuinalueen hankesuunnitelman toteutusvaiheeseen eteni kolmen rakennuksen ryhmä Torniojoen varressa. Jokaisella asunnolla on tilava lasitettu terassi jokinäkymien suuntaan, omat autopaikat ja -katokset.
Napakat käytännölliset neliöt edesauttoivat asuntojen myyntiä kustannustehokkaaseen hintaan.
As. Oy Länsirinne, Tornio
Rivitalot
Suunnittelutehtävä: Arkkitehtisuunnittelu
Projektiaika: 2022–2023
Rakentaja: TSV-Rakennus Oy
Tornioon rakennettiin kaksi länteen avautuvaa rivitaloa jokinäkymien äärelle. Kaksikerroksisien asuntojen parvekkeet ja terassit ovat lasitettuja ja lisäävät asumismukavuutta ympäri vuoden. Tilat ovat tehokkaasti ja käytännöllisesti suunniteltuja, mutta silti avaria ja valoisia. Huoneiden hyvä kalustettavuus mietitään huolellisesti suunnitteluvaiheessa.
Thurevikinkatu 3, Tornio
Rivitalo
Suunnittelutehtävä: PS/vastaava ARK
Projektiaika: 2025
Rakentaja: Rakennus Raitam Oy
Suunnitelma Tornion Putaalle rakennettavalle pienelle 3 asunnon rivitalolle. Rakentaja selvitti, että eniten on kysyntää kolmioille, missä on hyvät säilytystilat ja käytännölliset neliöt sekä tietenkin edullinen kokonaishinta. Kauniille tontille päädyttiin tekemään suunnitelma, missä energiatehokas rakennusmassa saa ilmettä toimivuutta lisäävistä katoksista ja värityksen hienovaraisesti vaihtelusta. Jokaiselle asunnolle jää tilava oma terassi ja piha.










